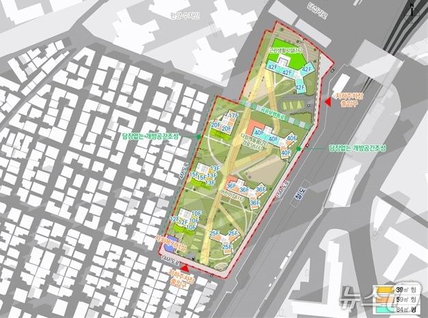
보행친화 단지·텐트형 스카이라인 조성 목표 용두동 일대 예상 조감도 (서울시 제공)뉴스1 ⓒ News1 관련 키워드서울시신통기획재개발용두동재개발재건축오현주 기자 '펫 특화룸 마련' 대원 칸타빌 디 에디션, 김포 북변2구역 공급현엔 '힐스테이트 소사역' 외관, 한국색채대상 혁신상 수상관련 기사與, 서울시 신통기획 단 2곳 비판에…오세훈 "씨 뿌린 지 하루만에 수확 따져"오세훈 "국토부와 민간공급 논의…세운4구역 '삼자 협의체' 필요"(종합)민주 "현대판 암행어사 될 것"…지방선거 대비 경청단 출범종로구, 신통기획 후보지 '행촌동' 선정…정비사업 속도오세훈 "정비구역 해제 민주당 수수방관…세운4는 종묘 가치 높여"(종합)